推薦產品
產品/專題
山美圓錐破和歐美某品牌圓錐破并駕齊驅,在韓國混凝土企業的骨料生產線共同擔任二破重任。【詳細】
推薦方案
物料
時產

PCX高效細碎機,亦稱反擊高效細碎機,適用于破碎抗壓強度不超過200MPa的石灰石、泥灰巖、砂巖、頁巖、石膏、煤等原料。 PCX系列高效細碎機具有很大的破碎腔和進料口,適宜大塊礦石順利進入,與常規破碎機相比有著明顯的優勢。
進料粒度:≤ 200mm
生產能力:水泥熟料:15-270t/h;石灰石:20-310t/h
應用領域:化工、建材、冶金、采礦、選煤、制砂及耐火材料等行業
適用物料:石灰石、水泥熟料、鐵礦石、頁巖、白云巖、花崗巖、石膏、混合材料
技術優秀
PCX系列高效細碎機吸收優質技術,經過優化設計和結構改進,而設計制造的新一代高效細碎機。
高細碎
合理的多腔破碎室組合,新型的便捷雙調節結構,出料粒度在3mm以下產品達到85%,產品粒度細而均勻。
維修簡單
便捷的檢修維護裝置,使調換錘頭、篩板更加便捷。
超長壽命
磨損件均采用新型優質多元素高鉻合金耐磨材料制造,保證了錘頭,襯板優越的耐磨性和耐沖擊性。
高效節能
本系列破碎機運轉平穩、低塵、低電耗。
破碎比大
可將二、三級破碎合為一級破碎,破碎比可達25-30。
錘頭壽命倍增
高效細碎機錘頭可以輪換4次使用,錘頭壽命倍增,大大節省成本,提高了投資回報。
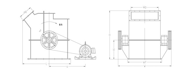
PCX系列高效細碎機主要由上下殼體,轉子部分,襯板,反擊裝置,錘頭裝置組成。轉子部分的軸心上有多個重疊排列的錘架,錘頭裝置固定在錘架之間的穿桿上。主軸兩端用滾動軸承座支承機架上。襯板分成若干塊固定于箱體上,保護箱體不受磨損。箱體分為上下兩部分,用螺栓連接,便于拆裝和檢修。
物料從進料斗依次進入腔體內,下落在高速旋轉的活動打擊錘頭上,經過錘頭與反擊板之間的作用,物料初步破碎在錘擊區,物料多次受到高頻的反復錘擊和反擊后下降在中隔板上,形成堆積,產生滑落,落在轉子下面的篩板上,又被高速拋到反擊板進行碰撞,下落并經移動式錘頭強制性反擊,破碎,研磨。因此,物料經過其自重下落過程中多次復合粉碎,沖刷研磨,從而實現了超細的效果。

PCX系列高效細碎機結構圖
| 型號 | 最大進料 (mm) | 平均出料 (mm) | 處理能力 (t/h) | 電機功率 (kw) | 外形尺寸 (mm) | |
| 水泥熟料 | 石灰石 | |||||
| PCX-8040 | 80 | 3 | 15-20 | 20-25 | 37 | 1395x1506x1390 |
| PCX-8080 | 80 | 3 | 25-30 | 30-40 | 45 | 1395x1906x1390 |
| PCX-9080 | 100 | 3 | 40-45 | 45-50 | 55 | 1754x1906x1659 |
| PCX-9010 | 100 | 3 | 45-50 | 50-55 | 75 | 1754x2176x1659 |
| PCX-1010 | 150 | 3-5 | 50-60 | 60-70 | 90 | 2138x2590x2021 |
| PCX-1210 | 200 | 3-5 | 60-80 | 70-90 | 110 | 2524x2716x2325 |
| PCX-1212 | 200 | 3-5 | 60-100 | 70-110 | 132 | 2524x2866x2325 |
| PCX-1414 | 200 | 5-8 | 70-150 | 70-160 | 200 | 2550x3120x2670 |
| PCX-1616 | 200 | 5-8 | 100-210 | 110-260 | 250 | 2922x3564x2900 |
| PCX-1818 | 200 | 5-10 | 120-270 | 130-310 | 315 | 3121x3754x3150 |
產品知識
全國統一銷售熱線:021-58205268,電子郵箱:info@sanmecorp.com
您可以填寫下面的表格,把您的聯系方式和產品需求提交給我們,我們將盡快與您聯系解決,謝謝!為了能及時和您取得聯系,請您務必完整填寫您的聯系方式和需求信息。